公司简介 公司新闻 综合资讯 产品展示 产品目录 客户反馈 联系我们 电子邮局
   主要产品为喷射器、蒸汽喷射器、脱硫喷射器、活性炭喷射器、静态混合器、动态混合设备、传热反应设备、过滤设备、消声设备、阻火设备等

混合器
管道过滤器
自清洗过滤器
空气过滤器
灭菌过滤器
滤件系列
精细过滤器
粉体输送设备
粉体混合设备
液体搅拌设备
消声器
特种小型设备
排水器
高效换热器
纸浆漂白专用设备
除污器(滤水器)
喷射器
纤维除雾器

 
喷射器
PSQ-型蒸汽喷射真空泵
PSG-气固喷射器
PSB电线电缆燃烧仪检测喷射器
PSC活性炭喷射器
PSS水泵房喷射节能器
PSY生物柴油喷射器
PST脱硫喷射器
PSD-地坑喷射器
PSJ喷射加热器
罐用喷射器
PSK开工抽引器
PSZ罐底焊缝真空检漏盒抽空器
液固喷射器
抽空器
 
          QD/HT型蒸汽减温器(急冷器)     
 产品概述
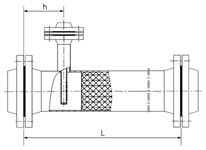
 蒸汽减温器是近代节能工程普遍采用的一种设备,该设备由减温水雾化装置与组合式汽化单元两大部分组成,雾化喷嘴对减温水进行压力雾化,分散于高温蒸汽汽流中,组合式汽化单元进一步对雾化减温水强制性旋转、剪切破碎,并在汽化单元内件表面被吸热汽化,显著强化了汽化过程,达到高温蒸汽的减温。该设备具有结构简单,雾化减温效率高、能耗小、投资少、操作弹性大、安装维修简单等优点。
产 品 型 号
入口蒸
汽量t/h
蒸汽入口、
出口管径
入口蒸
汽温度℃
出口蒸
汽温度℃
减 温
水管径
设备总长L
水管与
入口距离h
QHT0.6(1.0)-1.5/100
<1.5
100
250(425)
153(250)
32(25)
1000
150
QHT0.6(1.0)-3.0/100
1.5~3.0
100
250(425)
153(250)
32(25)
1000
150
QHT0.6(1.0)-5.0/150
3.0~5.0
150
250(425)
153(250)
32(25)
1100
150
QHT0.6(1.0)-7.0/200
5.0~7.0
200
250(425)
153(250)
32(25)
1200
170
QHT0.6(1.0)-10/200
7.0~10
200
250(425)
153(250)
32(25)
1200
170
QHT0.6(1.0)-15/200
10~15
200
250(425)
153(250)
40(32)
1200
170
QHT0.6(1.0)-20/250
15~20
250
250(425)
153(250)
40(32)
1300
170
QHT0.6(1.0)-30/300
20~30
300
250(425)
153(250)
50(32)
1400
200
QHT0.6(1.0)-40/400
30~40
400
250(425)
153(250)
50(32)
1600
200
   注:减温水压力~2.0MPa,流量(7~15)%汽量,括号内尺寸为DSL-1.0系列蒸汽减温器数据
 
南通沃尔驰石化工程有限公司 地址:启东市汇龙镇中央河中路691号 邮编:226200 http://www.jsqdhy.com E-mail:13862978163@126.com
电话:0513-83325673 传真:0513-83119878 手机:13862978163
脱硫喷射器|罐用喷射器|罐内喷射器|文丘里喷射器